
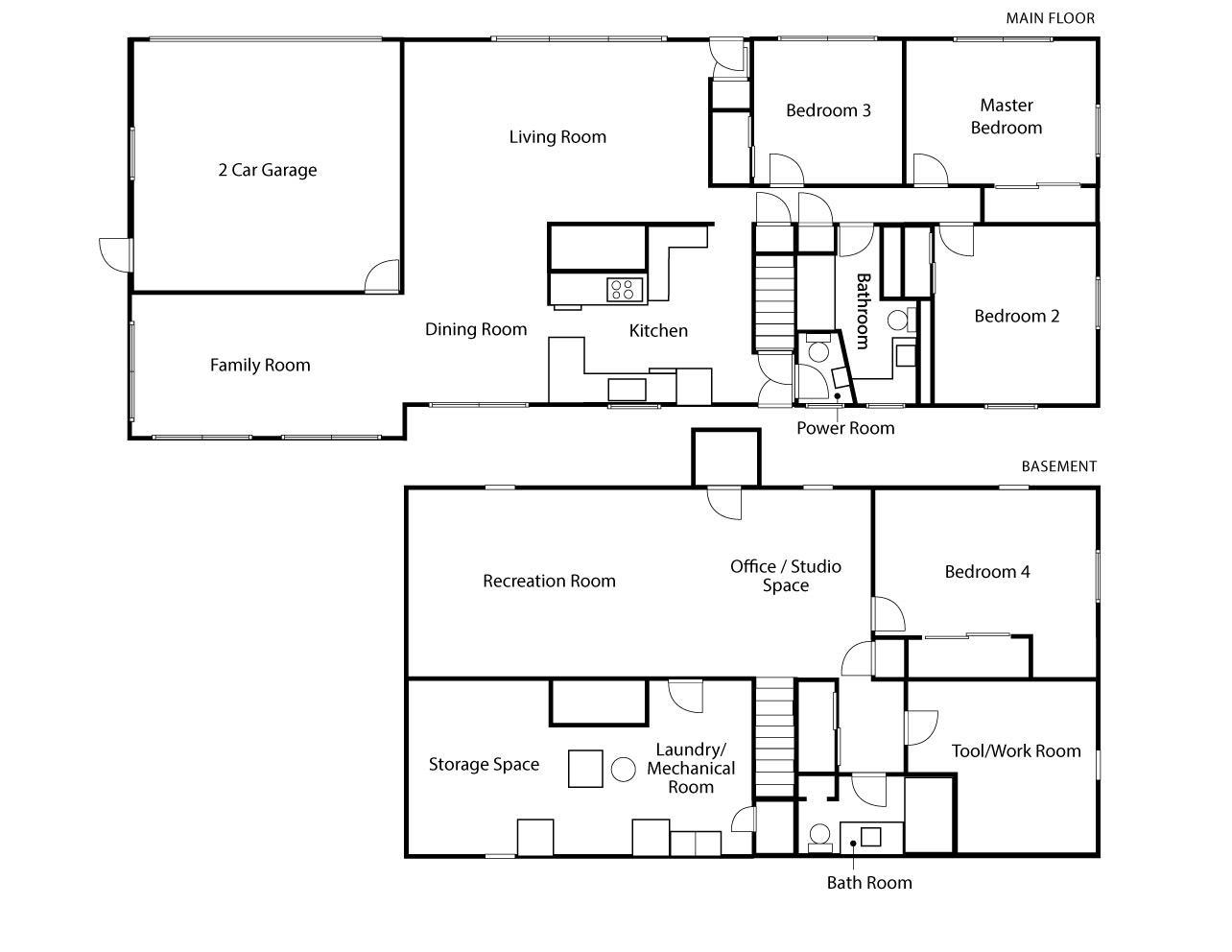
Updated mid-century ranch style home with finished basement, fenced yard, and major updates including new roof, windows, furnace and AC located in the highly desirable Roseville school district near parks and trails. Welcome to this beautifully maintained mid-century ranch style home in the heart of Roseville where timeless character meets thoughtful updates. With over 2500 sqf this 4BR/3BA home offers flexible living space. Modern upgrades and the layout ideal for both everyday living and entertaining. The updated kitchen features granite countertops, newer appliances, and luxury vinyl flooring, blending clean modern finishes with the home’s original charm. Original hardwood floors and brick fireplace highlight the home’s mid-century aesthetic, creating a warm and inviting main living space. The main level includes 3BR, while the finished lower level expands your options with a fourth BR, large bathroom with walk-in shower, spacious family room with gas fireplace and abundant storage. A dedicated workshop/tool room offers the potential for a fifth bedroom, home gym or office. Step outside to enjoy a fully fenced backyard with cedar privacy fencing and two separate patio areas perfect for relaxing or entertaining. Major updates provide Peace of Mind including a new roof (2025), electrical panel (2025), Marvin windows (2022), and high efficiency furnace and AC (2019). Located in the Roseville school district and within walking distance to Central Park and Willow Pond. This home offers both convenience and community in one of the area’s most desirable neighborhoods.
Data services provided by IDX Broker
| Price: | $445,000 |
| Address: | 2420 Dunlap Street N |
| City: | Roseville |
| County: | Ramsey |
| State: | Minnesota |
| Zip Code: | 55113 |
| Subdivision: | Porte Park |
| MLS: | 7054788 |
| Year Built: | 1957 |
| Square Feet: | 2,489 |
| Acres: | 0.246 |
| Lot Square Feet: | 0.246 acres |
| Bedrooms: | 4 |
| Bathrooms: | 3 |
| Half Bathrooms: | 2 |
| fuel: | Natural Gas |
| sewer: | City Sewer/Connected |
| levels: | One |
| cooling: | Central Air |
| fencing: | Privacy, Wood |
| heating: | Forced Air |
| taxYear: | 2026 |
| basement: | Block, Egress Window(s), Finished, Storage Space |
| appliances: | Cooktop, Dishwasher, Disposal, Dryer, Exhaust Fan, Gas Water Heater, Stainless Steel Appliances, Wall Oven, Washer |
| dpResource: | Yes |
| postalCity: | Roseville |
| contingency: | None |
| lenderOwned: | No |
| lotFeatures: | Corner Lot |
| waterSource: | City Water/Connected |
| garageSpaces: | 2 |
| lotSizeUnits: | Acres |
| amenitiesUnit: | Ceiling Fan(s), Hardwood Floors, Main Floor Primary Bedroom, Patio, Washer/Dryer Hookup |
| foundationArea: | 1560 |
| patioPorchType: | Patio |
| specialSearch2: | 3 BR on One Level, Main Floor Primary, Main Floor Bedroom |
| yearlySeasonal: | Yearly |
| fireplacesTotal: | 2 |
| parkingFeatures: | Attached Garage, Concrete |
| taxAnnualAmount: | 6014 |
| bathDescription2: | 3/4 Basement, Main Floor 1/2 Bath, Main Floor Full Bath, Walk-In Shower Stall |
| garageSquareFeet: | 440 |
| manufacturedHome: | N |
| roadFrontageType: | City Street |
| assessmentPending: | No |
| fireplaceFeatures: | Brick, Wood Burning |
| foreclosureStatus: | No |
| lotSizeDimensions: | 134x80 |
| newConstructionYN: | no |
| publicSurveyRange: | 23 |
| zoningDescription: | Residential-Single Family |
| highSchoolDistrict: | Roseville |
| potentialShortSale: | No |
| taxWithAssessments: | 6014 |
| aboveGradeSqFtTotal: | 1560 |
| belowGradeSqFtTotal: | 1560 |
| publicSurveySection: | 10 |
| schoolDistrictPhone: | 6516351600 |
| allowedUseCaseGroups: | IDX |
| publicSurveyTownship: | 29 |
| schoolDistrictNumber: | 623 |
| accessibilityFeatures: | None |
| constructionMaterials: | Block, Brick, Frame |
| fractionalOwnershipYN: | No |
| mainLevelFinishedArea: | 1560 |
| aboveGradeFinishedArea: | 1560 |
| belowGradeFinishedArea: | 929 |
| diningRoomDescription2: | Eat In Kitchen |





